Indipendenza, natura e luce: la casa che respira con te. Una casa baciata dal sole, dove il tempo rallenta e la qualità della vita cresce.
Antonio Troise uno di casa, la Vostra guida di fiducia nel mercato immobiliare, Vi presenta in vendita sulle colline di Piteccio, a circa 500 metri di altitudine, una casa indipendente con resede esclusivo, terreno e bosco privato. Un luogo ideale per chi cerca tranquillità, natura e aria pulita, a soli 20 minuti dal casello autostradale di Pistoia e 3 km dal centro di Piteccio, dove trovi tutti i principali servizi (farmacia, ufficio postale, trasporti pubblici e varie attività)
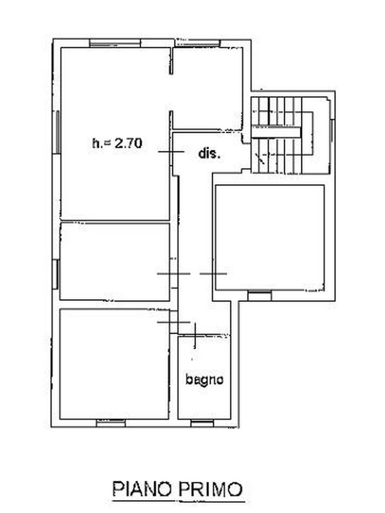
L’abitazione ha una superficie totale catastale di 166 mq. escluse aree esterne aperte 159 mq. , disposta su due livelli, accoglie al piano terra un ingresso, una grande cucina conviviale e due pratici ripostigli; al piano primo, una luminosa zona giorno, tre camere da letto, studio e bagno. All’esterno, un resede esclusivo perfetto per momenti di relax, oltre a terreno di circa 900 mq a 2 minuti dall’abitazione e bosco privato, per chi ama vivere il contatto diretto con la natura.
Tra le dotazioni moderne: Impianto fotovoltaico da 6 kW con batteria di accumulo, Caldaia a pellet, Pompa di calore, garantendo comfort, efficienza e sostenibilità.
L’abitazione si presenta in buone condizioni, subito abitabile, perfetta come prima o seconda casa per chi ama la quiete e il verde senza rinunciare alla comodità dei collegamenti.
Un rifugio luminoso tra il verde, dove la serenità è di casa. Antonio Troise uno di casa.
FOTO AVVISO AI CLIENTI: Per trasmettere al meglio l’atmosfera di questa casa, le immagini sono state scattate con obiettivo grandangolare (potrebbe far percepire gli ambienti più grandi rispetto alle dimensioni reali) e curate in post-produzione: un tocco in più per valorizzare la luce e raccontare gli spazi nel modo più fedele e coinvolgente possibile
- classe energetica B
- consumo 81 kwh/mq anno
- Servizi
- allarme
- aria condizionata
- ascensore
- camino
- cantina
- da ristrutturare
- garage
- giardino
- magazzino
- mansarda
- orto
- porticato
- posti auto
- resede
- ristrutturato
- soffitta
- soppalco
- taverna
- terrazza
- terreno
Inviami una mail per maggiori informazioni




































