IL TUO RIFUGIO ALL’ABETONE, TRA NATURA E COMODITÀ Ci sono case che non si limitano a essere abitate. Si vivono.
Sulla Via del Brennero, cuore pulsante dell’Abetone, dove tutto è a portata di mano e la montagna si respira ogni giorno, proponiamo villa indipendente libera su quattro lati, in ottime condizioni, pronta ad accogliere nuovi ricordi. Sotto casa, attività commerciali e servizi, per la massima comodità in ogni stagione. Sopra, la tua oasi privata.
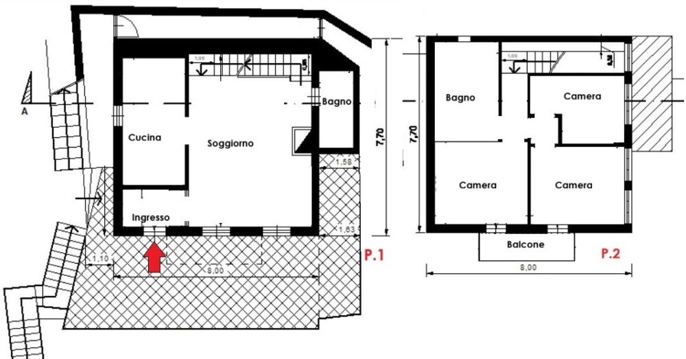
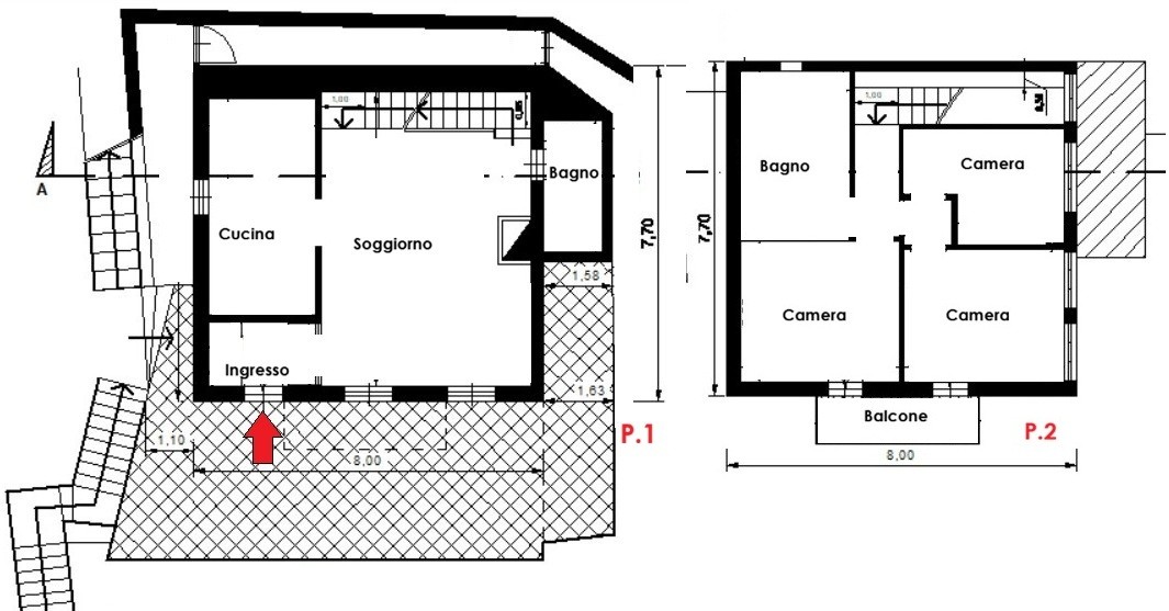
Una terrazza panoramica di circa 30 mq dove il tempo rallenta: colazioni con l’aria fresca di montagna, pranzi al sole, serate sotto le stelle. Il camino, cuore caldo della casa, perfetto per l’inverno dopo una giornata sulla neve. Tre camere da letto, luminose. Due bagni, funzionali e ben distribuiti. Riscaldamento autonomo, per un comfort totale. Ampio garage privato per 2/3 auto, una vera rarità all’Abetone.
Una casa ideale come prima residenza, seconda casa di charme o investimento, in una posizione che unisce vita di paese, servizi e panorama. Superficie catastale totale della casa è 131 mq . oltre il garage di 60 mq. Abetone (PT) – la montagna che ami, con la comodità che non ti aspetti.
- classe energetica g
- Servizi
- allarme
- aria condizionata
- ascensore
- camino
- cantina
- da ristrutturare
- garage
- giardino
- magazzino
- mansarda
- orto
- porticato
- posti auto
- resede
- ristrutturato
- soffitta
- soppalco
- taverna
- terrazza
- terreno
Inviami una mail per maggiori informazioni




































