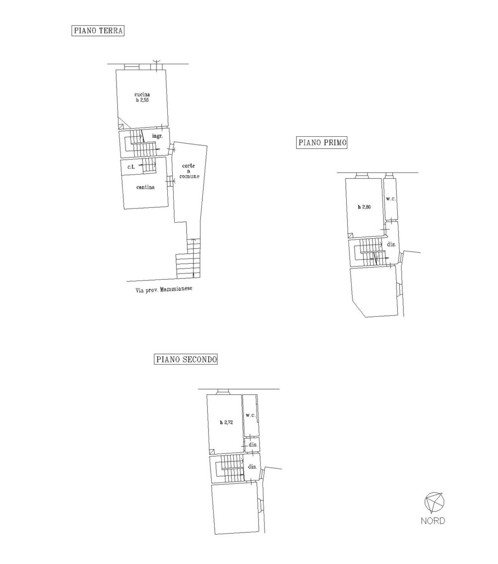
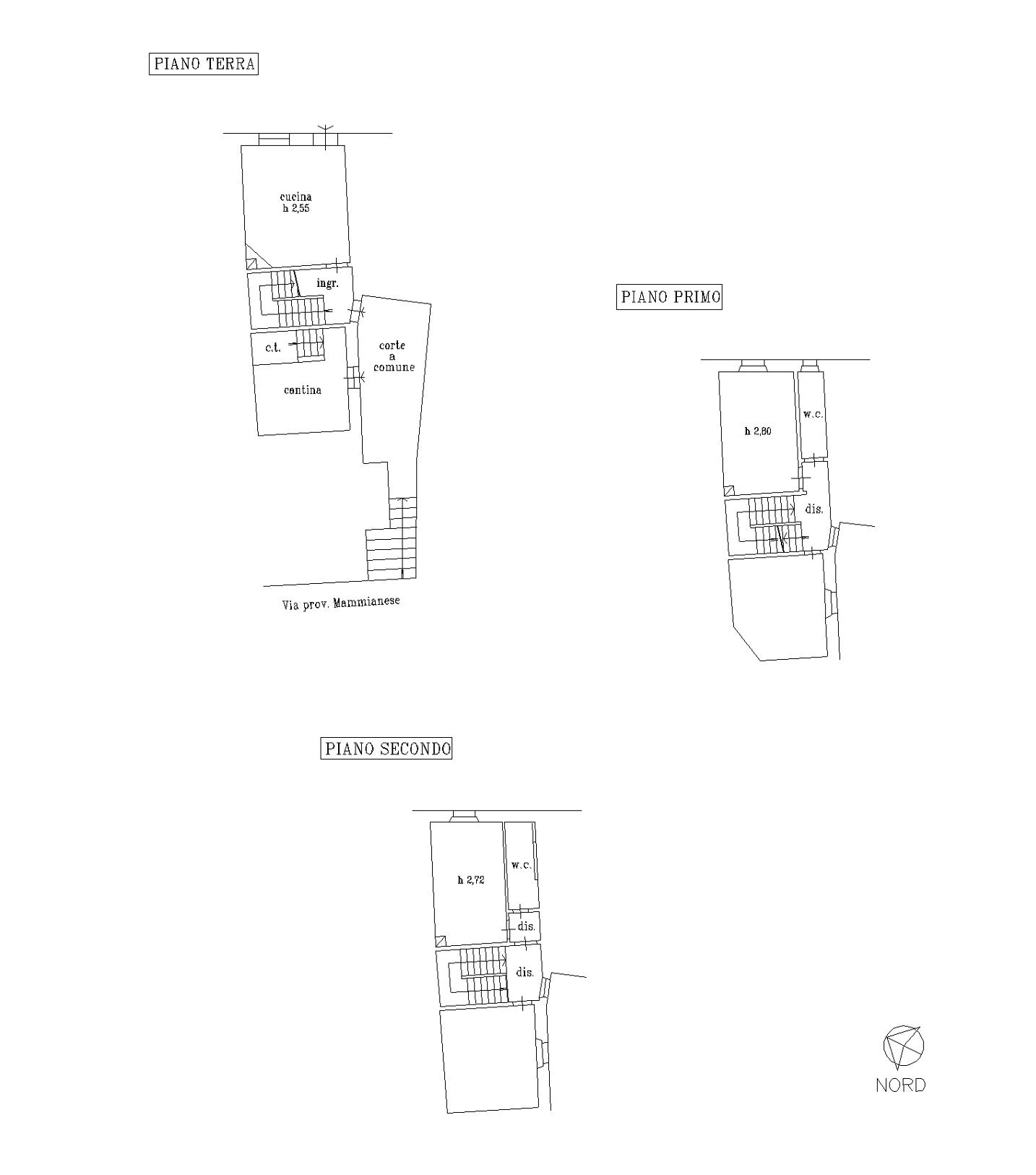
Proponiamo in vendita una casa indipendente da terratetto di 123 mq catastali, disposto su tre livelli in ottime condizioni e venduto arredato ubicata nel centro di Prunetta, Montagna Pistoiese (Comune di Piteglio), ma defilata rispetto alla statale quindi molto tranquilla
Caratteristiche principali:
Piano terra: cucina con camino e cantina ad uso lavanderia
Primo piano: soggiorno (utilizzabile anche come camera), una camera da letto e bagno
Secondo piano: due camere da letto e secondo bagno
Soffitta
Riscaldamento autonomo a gasolio.
La casa non dispone di giardino né posto auto, ma compensa con un rapporto qualità-prezzo davvero interessante, ideale come seconda casa o come rifugio per chi cerca tranquillità e aria pura.
Occasione unica per chi cerca una casa di montagna pronta da abitare, con spese contenute e tanto carattere.
- classe energetica G
- consumo 245 kwh/mq anno
- Servizi
- allarme
- aria condizionata
- ascensore
- camino
- cantina
- da ristrutturare
- garage
- giardino
- magazzino
- mansarda
- orto
- porticato
- posti auto
- resede
- ristrutturato
- soffitta
- soppalco
- taverna
- terrazza
- terreno
Inviami una mail per maggiori informazioni




























